Woonoppervlakte
Circa 63 m²
Inhoud
Circa 196 m³
Bouwjaar
Gebouwd in 1983
Aantal kamers
2 kamers (1 slaapkamers)

Sanne van Havelteplein 13

2712 EX, Zoetermeer (Zuid-Holland)

Een modern en goed onderhouden 2-kamerappartement op de eerste etage van een kleinschalig appartementencomplex in de wijk Dorp, met een zonnig balkon op het zuidwesten en een eigen berging in de onderbouw. Het gebouw beschikt over een actieve en gezonde VvE.

De ligging is ideaal: vlak bij de gezellige Dorpsstraat met een ruim aanbod aan winkels, restaurants en terrasjes. Ook het Burgemeester Vernede Sportpark, diverse sportverenigingen en het zwembad bevinden zich op loopafstand. Dankzij de centrale ligging is het NS-station Zoetermeer-Oost binnen 5 minuten te voet bereikbaar en bevinden de uitvalswegen (A12) zich op korte afstand.

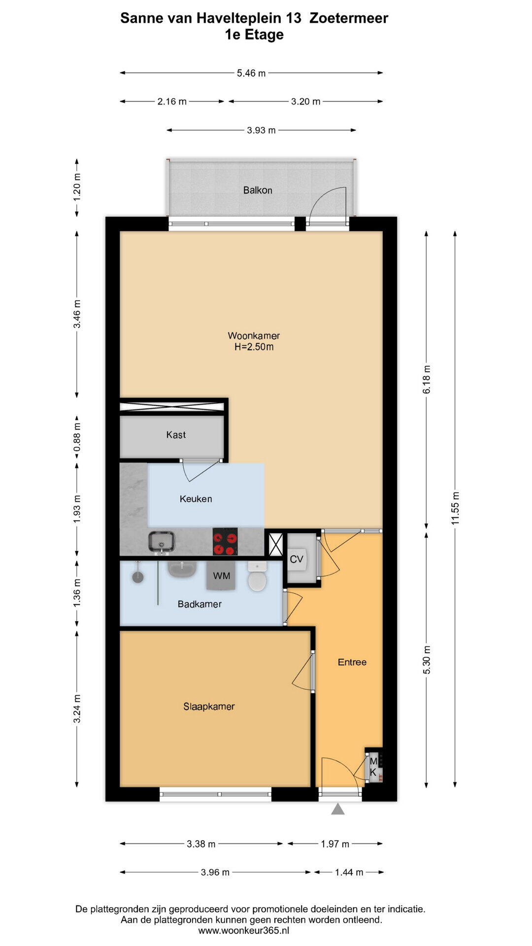
Indeling
Begane grond:
Gemeenschappelijke entree met brievenbussen, bellentableau, trappenhuis en toegang tot de eigen (fietsen)berging.

1e etage:
Galerij met entree naar de woning. Ruime hal met toegang tot de slaapkamer, badkamer en woonkamer.

De sfeervolle woon-/eetkamer is strak afgewerkt, heeft een fijne lichtinval dankzij de grote raampartijen en geeft toegang tot het zonnige balkon op het zuidwesten. Vanuit de woonkamer is de moderne halfopen keuken bereikbaar, uitgevoerd in 2019 en voorzien van een inductiekookplaat, afzuigkap, ingebouwde oven, ingebouwde magnetron, vaatwasser en een koel-/vriescombinatie. Ook is er een praktische voorraadkast aanwezig.

De ruime slaapkamer (ca. 3.96 x 3.38 m) ligt aan de achterzijde van het appartement en is netjes afgewerkt. De badkamer beschikt over een ruime douche, wastafelmeubel, toilet en aansluiting voor de wasmachine.

Beneden is er een eigen (fietsen)berging. Parkeren kan op het naast gelegen terrein bestemd voor de bewoners.

Bijzonderheden:
- Woonoppervlakte: 63 m2;
- Energielabel: C;
- Bouwjaar: 1983;
- CV-ketel 2021, maandelijkse huur €35,77 p/m;
- Actieve VvE, maandelijkse bijdrage €108,28 p/m;
- Oplevering in overleg.

Interesse in deze woning? Schakel direct uw eigen NVM-aankoopmakelaar in.
Uw NVM-aankoopmakelaar komt op voor uw belang en bespaart u veel tijd, geld en zorgen.
Adressen van collega NVM-aankoopmakelaars in Zoetermeer vindt u op Funda.nl.

Deze informatie is door ons met de nodige zorgvuldigheid samengesteld. Onzerzijds wordt echter geen enkele aansprakelijkheid aanvaard voor enige onvolledigheid, onjuistheid of anderszins, dan wel de gevolgen daarvan. Alle opgegeven maten en oppervlakten zijn indicatief.

Koopovereenkomst pas rechtsgeldig na ondertekening:
Een mondelinge overeenstemming tussen de particuliere verkoper en de particuliere koper is niet rechtsgeldig. Met andere woorden: er is geen koop. Er is pas sprake van een rechtsgeldige koop als de particuliere verkoper en de particuliere koper de koopovereenkomst hebben ondertekend.
Dit vloeit voort uit artikel 7:2 Burgerlijk Wetboek. Een bevestiging van de mondelinge overeenstemming per e-mail of een toegestuurd concept van de koopovereenkomst wordt overigens niet gezien als een 'ondertekende koopovereenkomst'.

Plattegronden

Overdracht

Vraagprijs
Vraagprijs: € 275.000 k.k.
Status
Verkocht
Aanvaarding
In overleg
Bijdrage VvE
€ 108.38 p/m

Bouw

Object type
Galerijflat, appartement
Soort bouw
Bestaande bouw
Bouwjaar
1983
Soort dak
Plat dak

Oppervlakte en inhoud

Woonoppervlakte
63 m²
Inhoud
196 m³
Externe bergruimte
3 m²
Gebouwgeb. buitenruimte
5 m²

Indeling

Aantal kamers
2 kamers (1 slaapkamers)
Aantal badkamers
1 badkamer
Badkamervoorzieningen
Toilet, douche, wastafel, wastafelmeubel, inloopdouche
Aantal woonlagen
1 woonlaag
Voorzieningen
Mechanische ventilatie, tv-kabel

Energie

Energielabel
C
Energielabel registratie
27-11-2016
Isolatie
Dakisolatie, muurisolatie, dubbel glas
Verwarming
Cv-ketel
Warm water
Cv-ketel
Cv ketel
Remeha tzerra m plus 24c cw3 combiketel elektrisch gestookt uit 2021 (huur)

Buitenruimte

Ligging
Aan rustige weg, in woonwijk
Tuin
Zonneterras
ligging tuin
Gelegen op het zuidwesten

Bergruimte

Schuur / berging
Box
Voorzieningen
Voorzien van elektra

Garage

Soort garage
Geen garage

Parkeergelegenheid

Soort parkeergelegenheid
Openbaar parkeren

VvE checklist

Inschrijving KvK
Ja
Jaarlijkse vergadering
Ja
Periodieke bijdrage
Ja, € 108.38 p/m
Reservefonds aanwezig
Ja
Onderhoudsplan
Ja
Opstalverzekering
Ja

Energieverbruik in Zoetermeer

Energielabel deze woning

Energielabel C

Publicatie energielabel: 27-11-2016

Stroomverbruik per jaar

2210 kWh

(Gemiddelde appartement in Zoetermeer)

Gasverbruik per jaar

750 m³

(Gemiddelde appartement in Zoetermeer)

* Cijfers zijn afkomstig van het CBS en bedoeld als indicatie en kunnen verschillen voor deze woning

Indicatie hypotheeklasten

Eigen inleg:
Spaargeld / overwaarde

Rente:
Laagste 10-jaars rente

Laagste 10-jaars rente

2,98% - Centraal Beheer Groen... - NHG


3,25% - Centraal Beheer Groen... - 80%

Laagste 20-jaars rente

3,29% - Centraal Beheer Groen... - NHG


3,52% - Centraal Beheer Groen... - 80%

Laagste 30-jaars rente

3,41% - Centraal Beheer Groen... - NHG


3,74% - Centraal Beheer Groen... - 80%


Hypotheek:

Bruto maandlasten: € 0 p/m

Netto maandlasten: € 0 p/m

Hoe berekenen we dit?

Het rentepercentage is gebaseerd op de laagste 10 jaars vaste rente voor één hypotheekdeel. De vermelde rente (2.98% met NHG) is gecontroleerd op 05-01-2026. Deze berekening is gebaseerd op een annuïteitenhypotheek die volledig wordt afgelost, waarbij de maandlasten gedurende de gehele looptijd gelijk blijven. De werkelijke rente en netto maandlasten kunnen variëren, afhankelijk van uw persoonlijke situatie en de hypotheekverstrekker. Raadpleeg een financieel adviseur voor een nauwkeurige berekening en advies. Aan deze berekening kunnen geen rechten worden ontleend; het dient enkel als indicatie.

Documentatie

Zonnegrenzen bekijken

Op de kaart

Inwoners in Zoetermeer

Cijfers voor postcodegebied 2712

Totaal aantal inwoners
5270 inwoners
Mannen
48%
Vrouwen
52%

Inwoners in Zoetermeer

Cijfers voor postcodegebied 2712

tot 15 jaar
14%
15 tot 25 jaar
10%
25 tot 35 jaar
27%
45 tot 65 jaar
27%
65 en ouder
22%

Huishoudens in Zoetermeer

Cijfers voor postcodegebied 2712

Eenpersoons zonder kinderen
42%
Meerpersoons zonder kinderen
30%
Huishoudens zonder kinderen
72%

Huishoudens in Zoetermeer

Cijfers voor postcodegebied 2712

Huishoudens met één kind
8%
Huishoudens met meerdere kinderen
20%
Huishoudens met kinderen
28%

Woningen in Zoetermeer

Cijfers voor postcodegebied 2712

Woningen voor 1945
18%
Woningen tussen 1945 en 1965
50%
Woningen tussen 1965 en 1975
6%
Woningen tussen 1975 en 1985
4%
Woningen tussen 1985 en 1995
6%

Woningen in Zoetermeer

Cijfers voor postcodegebied 2712

Woningen tussen 1995 en 2005
5%
Woningen tussen 2005 en 2015
10%
Woningen na 2015
1%
Huurwoningen
30%
Koopwoningen
70%

Overige in Zoetermeer

Cijfers voor postcodegebied 2712

Gemiddelde WOZ waarde
€ 233.000,-
Personen onder de 65 met uitkering
Niet beschikbaar

Overige in Zoetermeer

Cijfers voor postcodegebied 2712

Adressen per km²
2660
Stedelijkheid (schaal 1 op 5)
100%
Postcode kaart 2712 Gemeente kaart zoetermeer

Indien u vragen heeft of u wilt een bezichtiging inplannen, dan kunt u gebruik maken van het formulier hiernaast. Er zal daarna op korte termijn contact met u worden opgenomen.

Willem Dreeslaan 214

2729NJ, Zoetermeer

079 - 203 3059 info@kleurrijkmakelaars.nl www.kleurrijkmakelaars.nl

Kleurrijk NVM Makelaars & Taxateurs Zoetermeer

Bij Kleurrijk NVM Makelaars & Taxateurs staan wij voor u klaar. Bent u op zoek naar een makelaar die altijd bereikbaar is, snel handelt en u begeleidt bij de complexe aspecten van de aan- of verkoop van uw woning? Dan bent u bij ons aan het juiste adres. Met jarenlange ervaring in Zoetermeer, Lansingerland en Rotterdam bieden wij u deskundig advies. Wij verwelkomen u graag op ons hoofdkantoor in Zoetermeer aan de Willem Dreeslaan 214.

Kleurrijk NVM Makelaars & Taxateurs is de juiste keuze als u:

• Op zoek bent naar een specialist in aan- en verkoopbegeleiding;

• Waarde hecht aan laagdrempelige communicatie;

• Een voorkeur heeft voor duidelijke en directe communicatie;

• Belangrijk vindt dat uw makelaar goed naar u luistert;

• Het prettig vindt als uw makelaar flexibel beschikbaar is;

• Altijd direct contact wilt met uw makelaar;

• Een onafhankelijke taxatie wenst van uw woning door een van onze registertaxateurs (NWWI/NRVT).

Passie voor het vak

Vinod Lachmon, Register NVM-makelaar, heeft jarenlange ervaring opgedaan bij diverse grote makelaarskantoren in regio’s zoals Zoetermeer, Rotterdam, Lansingerland en Gouda. Hij beschikt over uitgebreide kennis en een groot netwerk. Vinod onderscheidt zich door zijn betrokkenheid, juridische precisie en de bereidheid om ook na de aan- of verkoop voor zijn klanten klaar te staan.

Kleurrijk NVM Makelaars & Taxateurs Zoetermeer
Reviews Kleurrijk NVM makelaars & taxateurs

Sanne van Havelteplein 13, Zoetermeer

Vraagprijs: € 275.000 k.k. - Verkocht

Helaas, deze woning is verkocht!

Net te laat, deze woning is al verkocht. Laat een zoekopdracht bij ons achter zodat wij u direct kunnen helpen wanneer er nieuw aanbod beschikbaar komt.